U planu vam je nova kuhinja ili opremate dom od nule? Za kreiranje najtoplije prostorije bitno je poduzeti temeljito planiranje, kako bi se uključili svi potrebni elementi i stvorila kuhinja koja je maksimalno praktična i odiše stilom. Pomažemo vam projektom kuhinje by Mirjana Mikulec interijeri inspirirane vintageom te realizirane materijalima iz Elgrada
Uređenju kuhinje poklanjamo veliku pažnju, jer je to mjesto u domu u kojem rado i često boravimo te uvelike koristimo sve njezine funkcije – skladištenja namirnica i posuđa, pripreme hrane, pranja pa sve do objedovanja. Ovo je stoga vrlo zahtjevan zadatak u uređenju za svakoga vlasnika, u kojem svaki centimetar mora biti osmišljen. Tim više, jer je riječ o prostoriji načelno skromne kvadrature.
Želite li stvoriti funkcionalan i estetski sklad u svojoj novoj kuhinji koja će odisati starinskim šarmom koji je trenutno jako poželjan, predlažemo projekt uređenja kuhinje koju je osmislio studio Mirjana Mikulec interijeri materijalima iz tvrtke Elgrad.
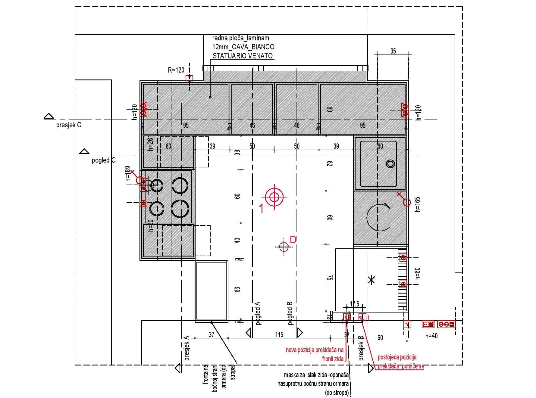
TLOCRTNO RJEŠENJE
Kuhinja u velikom stana u zagrebačkoj novogradnji zauzima skromnu površinu od osam četvornih metara. No, veliki bonus je blagovaonica koja se nalazi u sklopu dnevnog boravka, tako da neće biti potrebno u kuhinju stavljati stol sa stolicama te će ostati dovoljno mjesta za pohranu i sve ostale sadržaje i aktivnosti. Dnevni boravak je, kao što se vidi na tlocrtu, povezan s kuhinjom koja se nalazi u svojevrsnoj niši, tako da je dnevni prostor ostao maksimalno funkcionalan.
U dogovoru s vlasnicima, a kako bi se prostor što bolje iskoristio te ostvarile sve njihove želje, odlučeno je da kuhinja bude rađena po mjeri.
Nakon izmjere prostora, dizajneri iz studija Mirjane Mikulec krenuli su u izradu tlocrtnog rješenja koje uključuje i pozicije i razradu svih potrebnih elemenata – ormarića, ladica, radne plohe, hladnjaka, štednjaka i – vitrine koja se nalazi na ulazu u kuhinjski prostor.
Radi maksimalnog iskorištavanja prostora i što jednostavnijeg kretanja, kuhinja je koncipirana u obliku slova U.

Nakon rasporeda, idući korak koji slijedi je odabir materijala. Sljedeći potrebe i želje vlasnika, dizajneri su se odlučili za fronte ormarića u lakiranom frezanom medijapanu (MDF-u), pobojanom u ugodnu i prozračnu svijetlosivu nijansu (RAL 7037).
Za radnu ploču, ali i zidne obloge odabrana je ‘napredna’ keramika proizvođača Laminama, koju i zovemo upravo tako – prema proizvođaču. Riječ je keramičkim pločama od minerala na bazi porculana s iznimnim svojstvima – otpornima na habanje i oštećenja. Laminam je savršen odgovor na životni stil klijentice jer rado boravi u kuhinji i voli svakodnevno kuhati te pripremati obroke za obitelj i goste.
Prvotni prijedlog je bio laminam u crnoj boji, no na koncu je ipak, u suradnji s klijentima, odabran onaj s uzorkom mramora, model cava bianco (staturato ventato), debljine 12 mm, koji je unio prozračnost i eleganciju u prostor.

Kako su, kao i u većini novogradnje, u kuhinji bile postavljene i definirane podne i zidne pločice, a vlasnici su bili zadovoljni njima, odustalo se od ideje oblaganja zida laminamom između gornjih i donjih elemenata.
Želja klijentice je bila vitrina u prostoru kuhinje ili blagovanja, pa su je dizajneri smjestili na samom prolazu između ova dva prostora. Rađena je po mjeri, od istoga materijala kao i ostatak kuhinjskih fronti – frezanog medijapana. Stakla na vitrini donijela su željeni starinski štih, a radi dodatne atraktivnosti je u ostakljene, vidljive dijelove polica, stavljena ugradbena LED rasvjeta, a na fronte vintage ručke u crnoj boji, kao suptilan stilski naglasak.
Fronte medijapana su frezane, odnosno na njih su stavljene uklade tj. lajsne koje su također doprinijele starinskom ugođaju.

3D VIZUALIZACIJA
Nakon razrade tlocrta krenulo se na 3D vizualizaciju prostora koja je velika pomoć klijentu. On si tako lakše mogu predočiti kako će prostor izgledati u stvarnosti. 3D vizualizacija, poznata i kao renderiranje, vrlo plastično dočarava prostor koji se projektirao, jer se svi prijedlozi – raspored elemenata, boje, uzorci i teksture stapaju u cjelinu.

FINALNA IZVEDBA
Klijenti su poželjeli, nakon izrade projekta – tlocrta te rendera, i izvedbeno rješenje u aranžmanu studija Mirjana Mikulec interijeri.
U nastavku možete vidjeti kako kuhinja izgleda nakon realizacije.

Ostvaren je maksimalno funkcionalan prostor koji odiše vintage šarmom, ima dovoljno mjesta za spremanje i kuhanje, unutrašnjost ormarića je, uz pomoć inovativnih izvlačnih sistema posve iskorištena te je lako doći i do najudaljenijih namirnica i stvari.

Također, konceptom U oblika oba su bočna zida do stropa ispunjena ormarićima, a oslobođen je zid na kojem je vanjski otvor tako da prirodna svjetlost može u potpunosti biti iskorištena.
Kada nema dovoljno prirodne svjetlosti, uz umjetnu stropnu rasvjetu, tu je i već spomenuta rasvjeta unutar ostakljenih ormarića te LED trake ispod gornjih ormarića koji stvaraju još ugodniju i topliju atmosferu.

Izvor: InDizajn
Fotografije: Darko Mihalić / Sanja Jagatić
Orginalni članak: https://indizajn.rtl.hr/prostorije-doma/kuhinje/od-ideje-do-realizacije-moderna-funkcionalna-kuhinja-s-daskom-starinskog-sarma/